Fuerteventura.- El grupo de Coalición Canaria - Asamblea Majorera en La Oliva apoyó en el pleno extraordinario de hoy el Proyecto de Acondicionamiento, Accesibilidad de Aceras y Pavimentación Calzadas en Geafond, una iniciativa en que ya venía trabajando el ayuntamiento con Isaí Blanco como alcalde, y que sigue adelante con el nuevo grupo de gobierno.
La alcaldesa censurante y sus socios de gobierno "continúan con un proyecto que dejamos redactado y que, con la aprobación de hoy, da un nuevo paso adelante para poder invertir 3'8 millones de euros en la Urbanización Parque Natural de Corralejo en los próximos tres años", explicó Isaí Blanco.
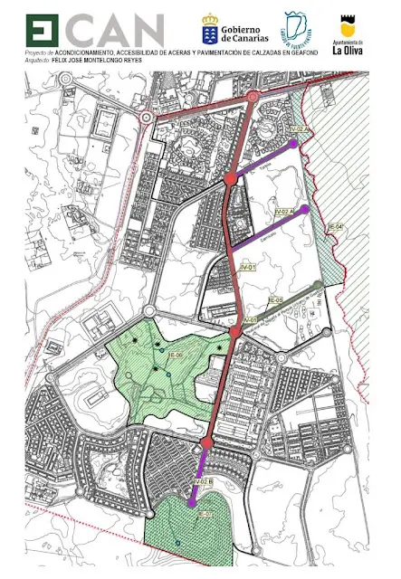
"Estamos muy contentos de que este proyecto siga adelante, pues se trata de la segunda fase de las obras en la Calle Guirre y de acceso al colegio que se están ejecutando en estos momentos, y que permitirá mejorar las aceras, el alumbrado y todas las dotaciones de movilidad y accesibilidad que tanto necesita esta zona de Corralejo", dijo Isaí Blanco.
Juan José Rodríguez, portavoz del Grupo de Coalición Canaria, y hasta la censura concejal de Economía y Hacienda, señaló, no obstante, que "nos preocupa que la alcaldesa no sea capaz de ejecutar el proyecto, ya que todavía tiene que aprobar los pliegos, licitar la obra y habilitar las partidas económicas necesarias. Estaremos muy atentos a estos trámites en los próximos meses, para asegurarnos de que un proyecto tan importante como este pueda seguir adelante".
